
【賃貸『蔵』のある暮らし:広島市佐伯区皆賀】ウエストバレー皆賀101
【賃貸『蔵』のある暮らし:広島市佐伯区皆賀】ウエストバレー皆賀101
【広島市佐伯区皆賀:賃貸『蔵』のある暮らし】JR五日市駅まで徒歩約15分、徒歩通勤可能。他にはない“ミサワホーム自慢の大収納『蔵』”のあるお部屋です。迷路のような複雑で楽しいお部屋の中に、小さな子供が大喜びしそうな蔵が隠れています☆蔵の天井高は低いものの、大容量で季節物の収納や、キャスター付きのケースなどで整理すれば、他の居住空間に収納家具を置く必要はなし!上下階のお隣さんと接する部分に蔵があるので、上下の音の問題も軽減☆LDKと寝室にそれぞれエアコン付き。玄関は安心のダブルロック。
詳細を見る

【リノベーション賃貸マンション:広島市佐伯区五日市中央】ライブ原田402
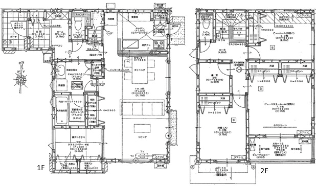
【リノベーション賃貸マンション:広島市佐伯区五日市中央】ライブ原田402
【広島市佐伯区五日市中央:リノベーション賃貸マンション】2026年1月にリフォームが完成し歌ばかりのお部屋です☆元々3LDKだったお部屋を広々2LDKに!15帖の南側のバルコニーに面したLDKが生まれました。シックな木目調のシステムキッチンは新品!とっても広いキッチンで、子供さんと並んで立ってお料理ができそうです☆元々の押入れも木目の扉が美しいクローゼットに変更しました。マンションが各階に2世帯のみで、全ての住戸が角部屋。窓も多く南側は駐車場に面している為、リビングはとても陽当たりが良く明るいお部屋です。北側の和室にも窓はもちろん、バルコニーが備わり、両面バルコニーによって風通しも良好。各住戸に専用の仕切られた屋根付きの駐輪場があり、バイクをお持ちの方も停められます☆是非、一度ご覧ください♪
詳細を見る

【小型犬・猫飼育OK賃貸テラスハウス:広島市佐伯区海老園】ガーデンコートB《360°VIEWあり》
【小型犬・猫飼育OK賃貸テラスハウス:広島市佐伯区海老園】ガーデンコートB《360°VIEWあり》
希少な猫ちゃんOK物件!
- ・JR&広電五日市駅徒歩圏内
- ・軽量鉄鋼造 2階建 3SDK 東向き
5.9万 共益費込 P敷地内1.1万(税込)
【広島市佐伯区海老園:小型件・猫飼育可テラスハウス】希少な猫ちゃんOKの賃貸物件です!猫もしくは小型犬1匹まで一緒に暮らすことができます☆キッチンをこの度リフォームして新品に!1階の床も新しく貼替済みです。壁紙は全て貼替済みで、気持ちよくご入居頂けます。ワンちゃんまたは猫ちゃんとの新しい暮らしにいかがでしょうか?
詳細を見る

【賃貸リフォームマンション:広島市佐伯区城山】水戸第3ビル202
【賃貸リフォームマンション:広島市佐伯区城山】水戸第3ビル202
【広島市佐伯区城山:賃貸リフォームマンション】元々3LDKのお部屋を2LDKに間取り変更してリビングを広々とさせたお部屋です☆対面キッチンになっていて、小さなお子様を見守りながらお料理もできて安心♪この度シャワー付き洗面台を新しくしました!建物は、ザ・ビッグ五日市店やサンリブ五日市店まで徒歩圏内、城山中学校や八幡小学校も徒歩10分以内と便利な立地です。是非、一度ご覧ください♪
詳細を見る

【賃貸アパート:広島市佐伯区三宅】ディアス梶山102
【賃貸アパート:広島市佐伯区三宅】ディアス梶山102
広々12帖洋室!P2台込
- ・バス・トイレ別 洗面所独立
- ・軽量鉄骨造 2階建 1DK 南東向き
5.3万 共益費込 P2台(普・軽)無料!!
【広島市佐伯区三宅:賃貸アパート】なんと、2台分の駐車場が無料のアパートです(普通車と軽自動車用)☆洋室は広々12帖あってゆったり♪人気の洗面所独立で、シャワー付き洗面台があります。洗面所にも窓があり、換気も◎。トイレも温水洗浄便座タイプ。玄関を開けて靴箱が丸見えにならない工夫もされています。南東向きでポカポカ陽当たりも良好☆z兵、一度ご覧ください♪
詳細を見る

【賃貸マンション:広島市佐伯区三筋】ひらのマンション401
【賃貸マンション:広島市佐伯区三筋】ひらのマンション401
【広島市佐伯区三筋:賃貸マンション】南向きの広めのバルコニーから暖かな日差しがポカポカ差し込むお部屋☆奥の洋室にも小さなバルコニーがあり、風通しも良好です!ゆったりと広い玄関なので、来客が多くても安心♪最上階でしかも角部屋なので、上階の物音や足音が気になりません。敷地内には小さな遊び場があり、近隣にはいくつか公園もあり、小さなお子様のおられるご家庭にはぴったり。平地のマンションなのでお買い物もお散歩もベビーカーを押してあちこち出掛けられます♪近くにスーパーSPARK(スパーク)やドラッグストアWants(ウォンツ)などがあります。
詳細を見る

【リフォーム賃貸マンション:広島市佐伯区千同】サコマンション304《360°VIEWあり》
【リフォーム賃貸マンション:広島市佐伯区千同】サコマンション304《360°VIEWあり》
【広島市佐伯区千同:リフォーム賃貸マンション】全室洋室にリフォームされた陽当たり良好なマンション!最上階の角部屋につき、上階や片方のお隣の音も気になりません☆温水洗浄便座やシューズボックス、TVモニター付きのインターフォンなど、設備もリニューアル♪目の前が敷地内の駐車場で解放感があり、光熱費のあがる冬場でも、ぽかぽかの南西向きバルコニーで節電も?静かな住宅街の中に位置しています。はなみずき通りまですぐ近く、西広島バイパスやコイン通りまでのアクセスも良好!是非一度ご覧ください♪
詳細を見る

【売中古戸建】佐伯区観音台1丁目
【売中古戸建】佐伯区観音台1丁目
【佐伯区観音台1丁目:売買中古戸建】通常はオプションになりがちな「外構工事」や、サイズ選びが難しい「カップボード」が既に価格に含まれています。入居時の手間と費用を大幅にカットできるお得な仕様です。さらに税制面等で有利なフラット35Sも利用可能(期限有)。「賢く、スムーズにマイホームを手に入れたい」という方にぴったりの1棟です。宅内電柱はありますが、その分敷地を有効に活用した配置計画がなされています。住設のカップボードや整えられた外構が、建物全体の美しさを引き立てます。
詳細を見る

【売買マンション:佐伯区楽々園】パラッシオ楽々園シービスタ
【売買マンション:佐伯区楽々園】パラッシオ楽々園シービスタ
【パラッシオ楽々園シービスタ:売買中古マンション】希少な9階部分×フルリフォーム。お早めのご検討をおすすめします。14階建ての9階という好条件により、陽当たり・眺望ともに良好です。給湯器やコンロまで新品に交換したオール電化仕様で、光熱費を一本化できる経済性も魅力。内装の細部までこだわったリフォームが完了したばかりですので、すぐにご案内可能です。お買い物のついでに、ぜひ一度内覧してみませんか?
詳細を見る

【売買マンション:広島市佐伯区五日市駅前】グランデュオ五日市駅前ウエスト
【売買マンション:広島市佐伯区五日市駅前】グランデュオ五日市駅前ウエスト
【広島市佐伯区五日市駅前:中古マンション】「空室リスクを寄せ付けない『駅前一等地』。生活機能が完結する、究極の利便性物件。」JR・広電・バスの3線が結節するターミナルの目の前。マンション1階にはスーパー・衣料品店が入り、コンビニ・銀行も徒歩1分以内という「生活のすべてが足元で揃う」環境は、賃貸需要において圧倒的な強みを持ちます。現在オーナーチェンジ物件として安定稼働中。新耐震基準につき、長期的な保有も、将来の実需向け売却も視野に入れられる、出口戦略の描きやすい一軒です。
詳細を見る


【広島工業大学 こだわりルームPROJECT 第6弾 最優秀賞:広島市佐伯区楽々園】瀬川ビル 701
【広島工業大学 こだわりルームPROJECT 第6弾 最優秀賞:広島市佐伯区楽々園】瀬川ビル 701
【広島市佐伯区楽々園:広工大コラボ賃貸マンション】広島工業大学のJCDセンター様との第6弾コラボ企画で、女子学…
続きを読む詳細を見る
詳細を見る


【リノベーション賃貸マンション:広島市佐伯区五日市中央】ライブ原田402
【リノベーション賃貸マンション:広島市佐伯区五日市中央】ライブ原田402
【広島市佐伯区五日市中央:リノベーション賃貸マンション】元々3LDKだったお部屋をリビング広々15帖の2LDK…
続きを読む詳細を見る
詳細を見る


【広島工業大学 こだわりルームPROJECT 第13弾 最優秀賞:楽々園】ライブオークサカモト201
【広島工業大学 こだわりルームPROJECT 第13弾 最優秀賞:楽々園】ライブオークサカモト201
【広電楽々園駅近く:広島工業大学 こだわりルームPROJECT 第13弾 最優秀賞】元々和室だった居室を、ダイ…
続きを読む詳細を見る
詳細を見る